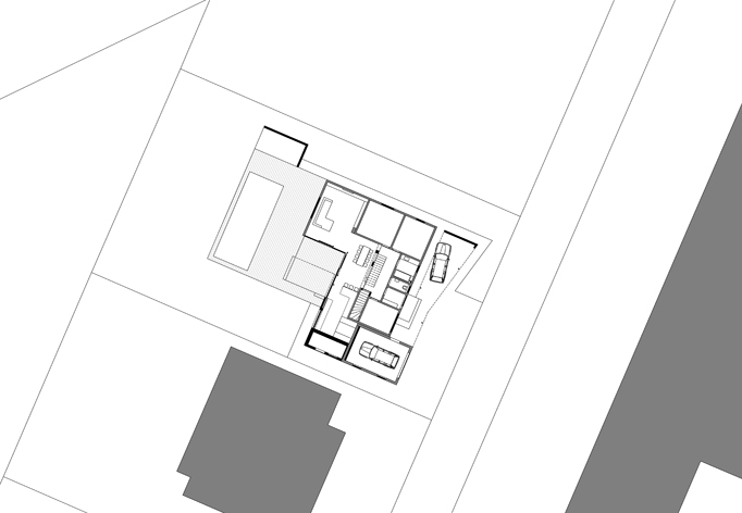
Ein bestehender Bungalow aus den 90er Jahren wird erweitert. Küche und Essbereich werden vergrößert und zum Garten geöfffnet, in der Mitte des Erdgeschoßes wird eine offene Treppe ergänzt, die neuen Privatbereich erschließt. Straßenseitig bildet die Verbindung eines neuen Carports mit der bestehenden Garage eine neue Eingangssituation. Die Farbe der Fassade nimmt Bezug auf das bestehende, rote Ziegelwalmdach.