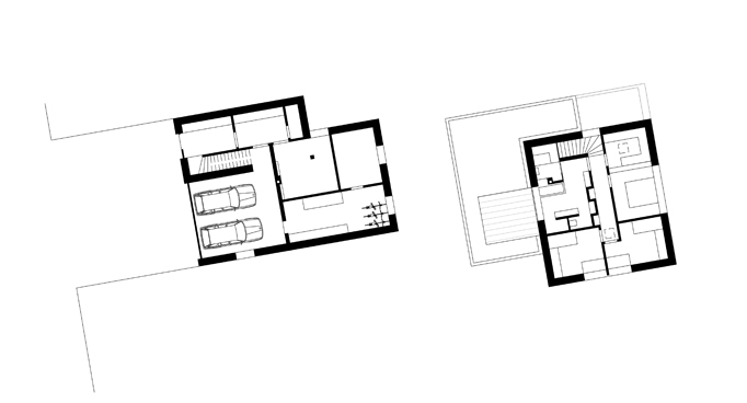
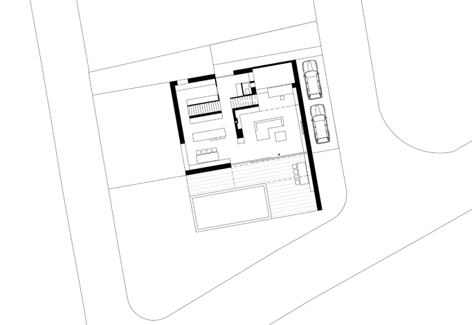
Ein Einfamilienhaus am Hang, in landschaftlich schöner Lage, mit Blick über das Voralpenland und die nahegelegenen Ausläufer der Alpen. Die Niveaus des Hauses lehnen sich an den bestehenden Hang. Klare Sicht- und Erschließungsachsen bestimmen die Funktionalität des Grundrisses und stärken den Bezug zur Landschaft.