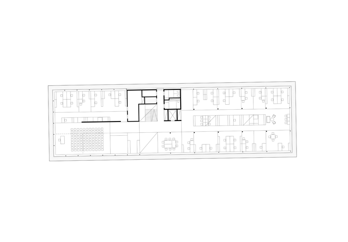
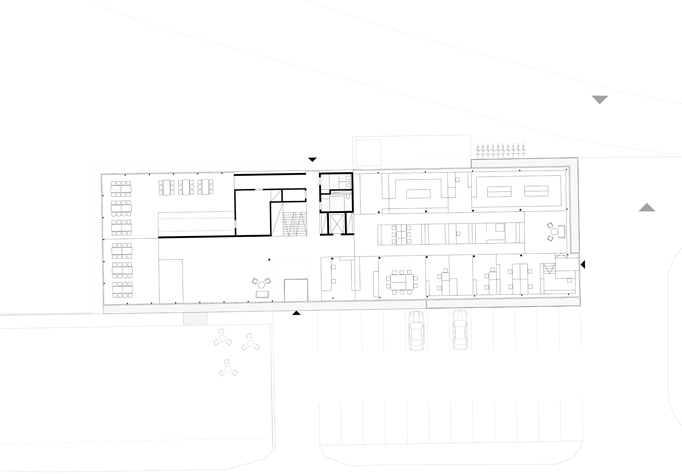
Das Gebäude bildet ein Tor zum Betriebsareal. Um die Erschließung leicht ablesbar zu machen, wird der Baukörper gezielt geöffnet, seine Höhenentwicklung stellt eine Verbindung zur umliegenden Bebauung her. Eine offene, lichtdurchflutete Treppe, welche zentral situiert ist, sorgt für kurze Wege und verbindet Ausstelungsflächen und Wartebereiche unmittelbar miteinander. Die Erschließung auf dem Gelände ist ebenfalls klar gegliedert. Die LKW- Parkierungsflächen sind so gestaltet, dass von der Ankunft über die Warte-, Ablade- und Abfahrtszeit keine Stauzonen entstehen. Die Fassade aus Cortenstahl Streckmetall sorgt für einen wartungsarmen, windsicheren Sonnenschutz und eine unverkennbare Wirkung.