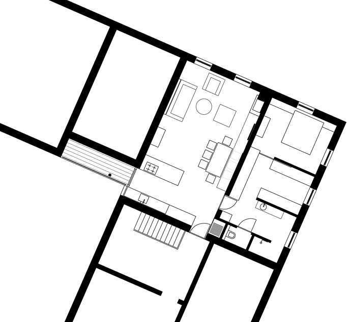
Ein schonender Umgang mit der bestehenden Bausubstanz wird durch gezieltes Ergänzen von notwendigen Belichtungsflächen möglich. Die eingefügten Elemente leben von einer schlichten Geometrie und ausgewählten Materialien. Das Herzstück der Wohnung bildet der offene Ess- und Wohnbereich. Die einzelnen Funktionen dieses Raumes greifen Lückenlos inneinender und bilden ein gut nutzbares Ganzes. Fast genauso offen wie der Wohnbereich präsentiert sich der Privatbereich. Zur Gänze versenkbare Schiebetüren ermöglichen ein großzügiges Raumgefüge sowie Privatsphäre bei Bedarf.